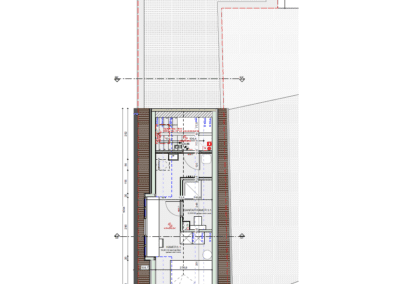
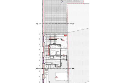
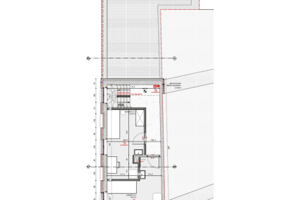
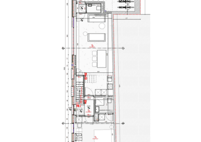
Project Lange Penninckstraat 50